Z世代の实境元宇宙
【EGA认证诚信建造商】ACT工作室@杭州
个人or团队简介
ACT曾是KingTeam密室设计团队的创始人兼设计总监,后让出,重新成立ACT设计工作室。自2012年开始从事密室行业,作为密室行业的资深设计师,ACT带领他的设计团队于国内及海外成功打造了很多项目。无论是设计,施工,还是运营,都有着非常丰富的经验。工作室设计范畴也从密室扩展到多项创意装修。国内项目遍布,上海,北京,杭州,南京,武汉,重庆,云南,长沙,西安,沈阳,厦门等多个城市。经由ACT所设计指导的上海Dining Cube暗房密室逃脱,北京黑魔鬼密室逃脱俱乐部,承德双子真人密室逃脱游戏馆,杭州Xcape密室逃脱集合店,都得到了玩家及同行的一致好评。对于设计上,ACT认为,在于能够揉和创意和设计于一体,在空间上,更多架构运用及层次感的营造相当重要。
“你可以活在你的梦里”这就是他对于客户要求的理解。因此他的设计总是能让人眼前一亮,独特的创意和机关的使用让更多的客户认可ACT设计工作室!
代表作
《夏日的回忆》——公认的最好的恐怖类主题
《生化研究所》——玩家评价最好玩的生化类主题
《盗墓笔记》 ——代入感最强的盗墓类主题
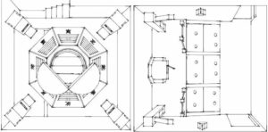
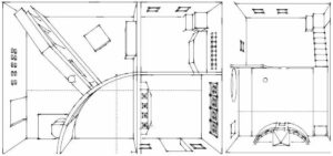
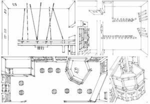
展示图




















